MX-Immo

Optez pour un accompagnement immobilier sur mesure. De la mise en vente ou la recherche de votre bien jusqu'à la signature des actes, je vous accompagne.

Infos de contact

Route de Botrange, 79,
4950 Waimes
xavier@mx-immo.be
+32 473 55 68 70

Classe énergétique PEB Sommerain 71 – Mont maison / fermette À vendre à mont (luxembourg)

265.000€

Vendu

🎉 Félicitations, ce bien a trouvé son nouveau propriétaire ! 🏡

Ne vous inquiétez pas, de nombreux autres biens sont encore disponibles pour réaliser vos projets.
Continuez votre recherche pour trouver la maison ou l’appartement de vos rêves.
Nous sommes là pour vous accompagner à chaque étape ! 🌟

Description

Très belle maison de caractère et entretenue avec soin (rénovée en partie en 2021) et offrant de très belles et nombreuses possibilité d’aménagement – Situation verdoyante et calme à deux pas du centre du village, très belle vue, à 5 minutes du centre de Houffalize et de ses nombreux commerces, services, accès autoroutier
DESCRIPTION
Rez-de-chaussée : hall d’entrée carrelé, living carrelé très lumineux, belle cuisine équipée avec espace repas donnant accès au jardin, salon, wc, grange (buanderie)
1er étage : palier, cinq belles chambres à coucher dont trois à achever, salle de bains équipée, grand fenil aménageable
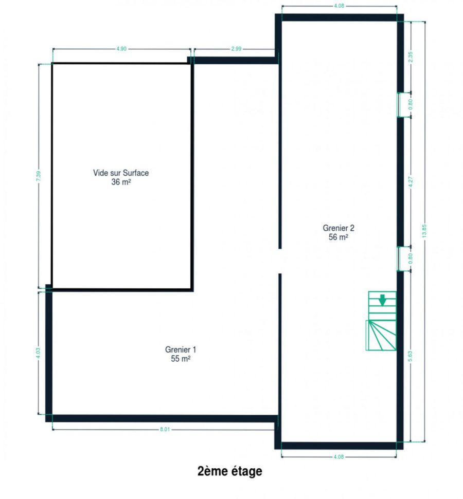
2e étage : grenier, grand fenil aménageable
Extérieur : jardin, garage, deux remises de jardin (dont une dans un enclos)
PARTICULARITES
– Cuisine équipée: nombreux meubles, cuisinière au gaz, hotte extractive, frigo + congélateur
– Salle de bains équipée: baignoire rétro, douche à l’italienne, meuble double vasque, miroir éclairé
– Chauffage : poêle à pellets dans le salon, poêle à bois et gaz dans le living et électrique à accumulation dans les chambres à coucher et salle de bains
– Châssis de fenêtres en méranti double et simple vitrage
– Toiture de la maison entièrement recouverte d’ardoises naturelles
– Electricité en majeure partie rénovée en 2021
– Travaux d’isolations (mur et sol) réalisés en 2021
MODALITES
Possibilité de réduction des droits d’enregistrement

Sommerain, 71
6661 Mont (luxembourg)
Belgique

Créer un itinéraire

Finance

Cadastre 391€
Disponibilité à l'acte

Données générales

Référence 2022-04
Ville Mont (luxembourg)
Type du bien Maison
Année de construction 1918
Année de rénovation 2021
État du bien À rénover
Bien meublé 1

Configurations

Nombre d'étage(s) 3
Chambres 5
Nombre de toilette(s) 2
Salle de bain 1
Nombre de garage(s) 1
Terrasse(s) Oui
Parking Oui
Jardin Oui

Rapports énergériques

Code unique PEB 20220324015136
Classe énergétique PEB F
Valeur énergétique E-SPEC kWh/m²/an 437
Valeur énergétique total E-Total Kwh/an 113007
Valeur d'émission de gaz Kg CO2/an 79
Type de chauffage Gaz

Documents


Monsieur Malherbe nous a accompagnés de A à Z dans notre recherche, avec dynamisme et professionnalisme. Une personne compétente que nous recommandons sans réserve. Encore merci pour tout.

⭐⭐⭐⭐⭐
B Loic

Très compétent, à l'écoute de la demande. Personne qui ferait tout pour aujourd'hui der et satisfaire. Je recommande

⭐⭐⭐⭐⭐
Eric Cornelis

Personne très professionnel et très humaine. Je me suis senti accompagné du début à la fin, tant dans les démarches que dans les explications dont j'avais besoin. Le suivi est au poil ! Je recommande fortement le travail avec Xavier Malherbe!

⭐⭐⭐⭐⭐
Florian Sandron

Xavier Malherbe est au service du client et non que de son intérêt personnel. Ce qui fait la différence par rapport à d'autres agents! Le service est de qualité, professionnel et irréprochable. Je recommande vivement!

⭐⭐⭐⭐⭐
Van Eldom Lionel

Un immense merci à Monsieur Malherbe pour avoir pris en charge la vente de la maison de mon papa avec autant de sérieux que de bienveillance. Tout a été parfaitement organisé du début à la fin : conseils avisés, suivi attentif, réactivité et professionnalisme irréprochable. J’ai particulièrement apprécié son écoute et sa capacité à rendre cette étape beaucoup plus simple et rassurante pour nous. Une personne de confiance que je recommande vivement !

⭐⭐⭐⭐⭐
nathalie hendrick

Ce bien n'est plus disponible

Je tenais à te remercier chaleureusement et à souligner ton professionnalisme. Nous avons collaboré à plusieurs reprises et à chaque fois, j’ai apprécié ton écoute, ta gentillesse, ton implication en plus de tes compétences.
Cela ne peut qu’instaurer un climat de confiance si important. De plus, sur mes recommandations, des amis ont fait appel à toi et ils en ont été également très satisfaits en plus des résultats rapides et concluants.

Paul Zanzen