🎉 Félicitations, ce bien a trouvé son nouveau propriétaire ! 🏡
Ne vous inquiétez pas, de nombreux autres biens sont encore disponibles pour réaliser vos projets.
Continuez votre recherche pour trouver la maison ou l’appartement de vos rêves.
Nous sommes là pour vous accompagner à chaque étape ! 🌟
Description
Très belle fermette entretenue avec soin et offrant de très belles et nombreuses possibilité d’aménagement – Situation verdoyante et calme à deux pas du centre du village, à 5 minutes du centre de Waimes et de ses nombreux commerces, services, accès autoroutier
DESCRIPTION
Sous-sol : hall de cave, deux caves et une chaufferie
Rez-de-chaussée : hall d’entrée carrelé, living lumineux ouvert sur la cuisine équipée avec espace repas donnant accès à la terrasse et au jardin, salon, buanderie, salle de bains, wc, véranda, deux garages, étables
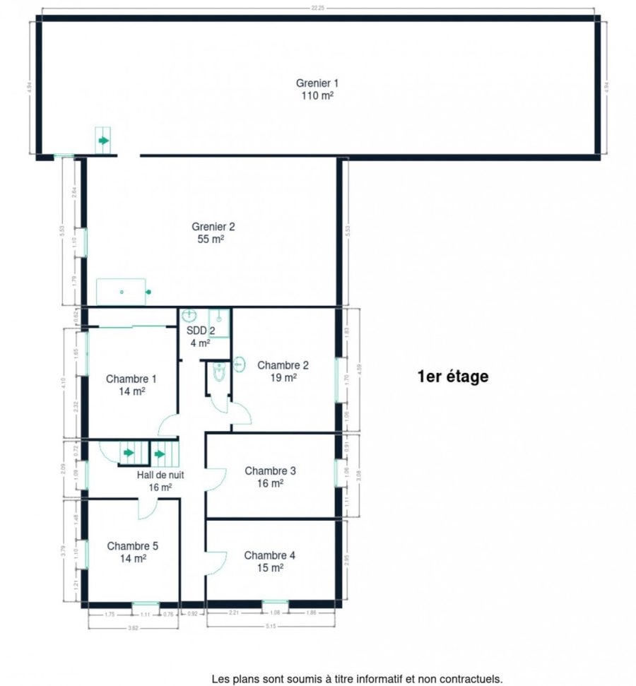
1er étage : hall de nuit desservant cinq belles chambres à coucher, salle de bains équipée, grand grenier aménageable
2e étage : grenier, grand fenil aménageable
Extérieur : jardin, terrasse, emplacement de parking et deux garages
PARTICULARITES
– Cuisine équipée: nombreux meubles sur mesure, taque vitro céramique 4 zones, four, hotte, frigo
– Salle de bains équipée: douche à l’italienne, meuble sur mesure avec un évier et un grand miroir éclairé
– Salle de douche : douche et wc
– Chauffage central mazout et poêle à bois dans le living
– Châssis de fenêtres en aluminium simple et double vitrage
MODALITES
– Visites exclusivement sur rendez-vous
– Possibilité de réduction des droits d’enregistrement
– OPTION : possibilité d’acquérir une ou deux parcelles à bâtir, prix sur demande
Bruyères, 85
4950 Waimes
Belgique
Finance
| Cadastre | 584€ |
|---|---|
| Disponibilité | à l'acte |
Données générales
| Référence | 2024-125 |
|---|---|
| Ville | Waimes |
| Type du bien | Maison |
| Année de construction | 1957 |
| État du bien | Bon état |
Configurations
| Nombre d'étage(s) | 2 |
|---|---|
| Chambres | 5 |
| Nombre de toilette(s) | 2 |
| Salle de bain | 2 |
| Nombre de garage(s) | 2 |
| Terrasse(s) | Oui |
| Parking | Oui |
| Jardin | Oui |
Rapports énergériques
| Code unique PEB | 20231023025400 |
|---|---|
| Classe énergétique PEB | F |
| Valeur énergétique E-SPEC kWh/m²/an | 467 |
| Valeur énergétique total E-Total Kwh/an | 112417 |
| Valeur d'émission de gaz Kg CO2/an | 116 |
| Type de chauffage | Mazout (chauf. centr.) |





























