Description
Nous vous proposons une opportunité d’investissement exceptionnelle dans le cœur de Malmedy (ancien établissement Willems). Cet immeuble mixte, idéalement situé, comprend plusieurs unités distinctes, dont certaines sont déjà occupées, garantissant un revenu locatif immédiat.
Caractéristiques de l’immeuble :
- Surface commerciale (rez-de-chaussée) : accès indépendant, idéale pour un commerce ou bureau.
- Trois appartements 1 chambre : déjà occupés par des locataires, avec une entrée indépendante. Ces appartements offrent une belle luminosité et des agencements fonctionnels.
- Maison bel étage 2 chambres : spacieux, avec un ascenseur privé, accès par une entrée indépendante. Cet espace moderne bénéficie de volumes généreux et est parfait pour un propriétaire-occupant ou une location premium.
- Trois entrées indépendantes :
- Une pour la surface commerciale
- Une pour les trois appartements
- Une pour la maison bel étage avec ascenseur
Avantages :
- Emplacement stratégique : situé au centre de Malmedy, proche des commerces, restaurants et services.
- Rentabilité immédiate : les trois appartements sont déjà loués, garantissant un revenu locatif stable.
- Confort moderne : ascenseur privé desservant la maison bel étage, aménagements récents, grande luminosité.
Cet immeuble est parfait pour un investisseur cherchant à diversifier ses revenus grâce à la location commerciale et résidentielle, avec des locataires déjà en place pour les appartements.
Cet immeuble est également idéale pour un propriétaire-occupant et/ou exploitant de la surface commerciale
Modalités :
– Visites : exclusivement sur rendez-vous avec l’Agence
– Baux et revenus locatifs disponible sur demande
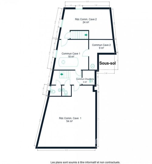
– Caractéristiques techniques, plans et détails à télécharger dans l’onglet Documents : fichier « Livret »
Rue Neuve, 42-44
4960 Malmedy
Belgique
Finance
| Prix | 759.000€ |
|---|---|
| Cadastre | 3.191€ |
| Disponibilité | à l'acte |
Données générales
| Référence | 2024-153 |
|---|---|
| Ville | Malmedy |
| Type du bien | Maison |
| Année de construction | 1990 |
| État du bien | Bon état |
Configurations
| Nombre d'étage(s) | 3 |
|---|---|
| Chambres | 5 |
| Nombre de toilette(s) | 8 |
| Salle de bain | 5 |
| Terrasse(s) | Oui |
Rapports énergériques
| Code unique PEB | 20240911021920 |
|---|---|
| Classe énergétique PEB | D |
| Valeur énergétique E-SPEC kWh/m²/an | 279 |
| Valeur énergétique total E-Total Kwh/an | 45728 |
| Valeur d'émission de gaz Kg CO2/an | 69 |
| Type de chauffage | Mazout (chauf. centr.) |





























