Description
🏡 Villa contemporaine de 2023 avec vue panoramique sur la campagne
Une création récente qui allie architecture moderne, matériaux nobles et performances énergétiques exemplaires.
Cette villa quatre façades, érigée en 2023, s’impose par son élégance sobre, sa luminosité naturelle et sa situation dominante avec vue imprenable sur les campagnes de Herve.
✨ Les atouts majeurs
Construction traditionnelle haut de gamme : brique « Belle Époque de Mons » et moellons en pierre bleue
210 m² habitables (près de 300 m² exploitables avec grenier)
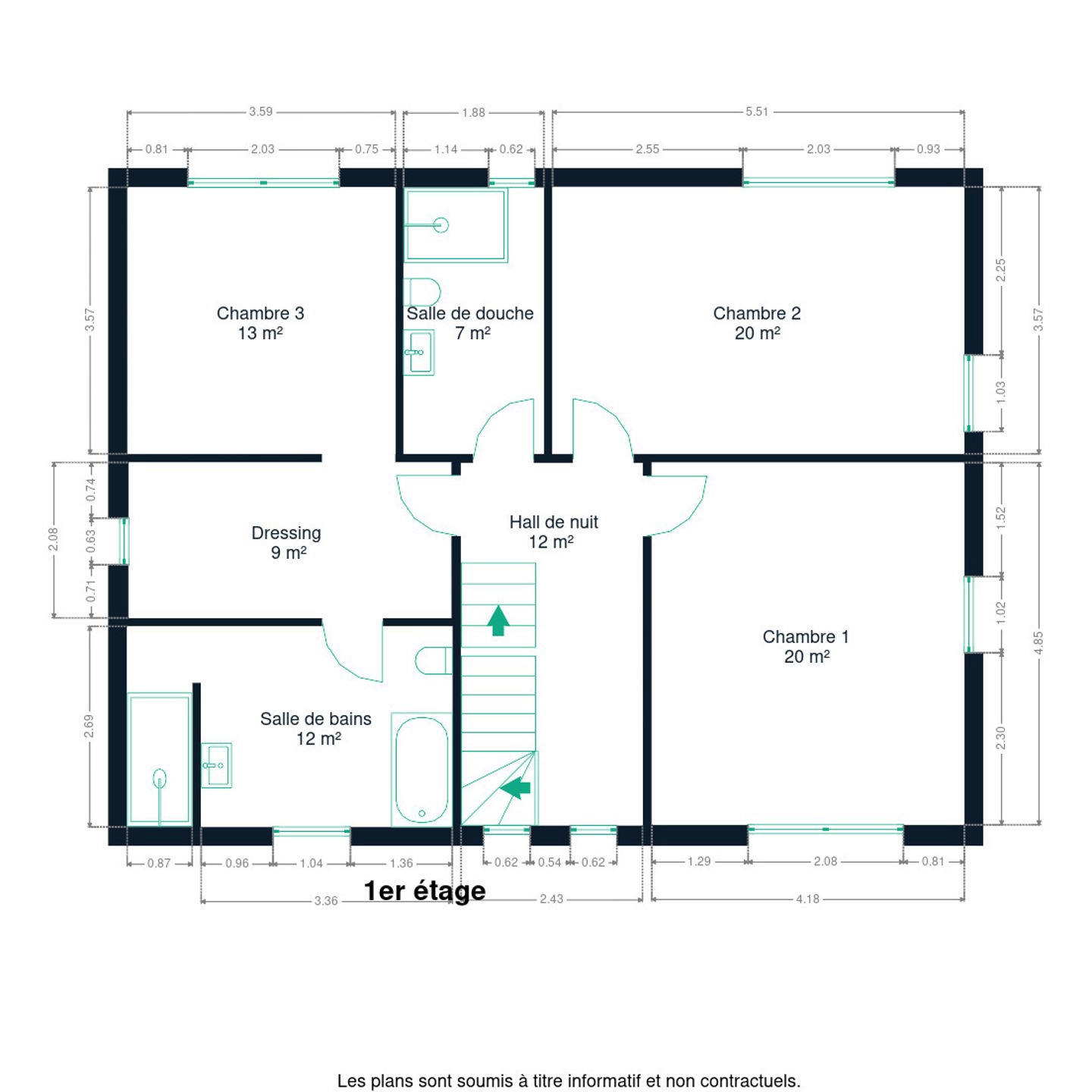
3 chambres, 2 salles d’eau (bain et douche italienne)
Grenier aménageable de 64 m²
Terrasse carrelée de 40 m² exposée plein Est
Jardin entièrement clôturé et aménagé
Annexe en dur de 32 m², idéale pour bureau, atelier ou stockage
⚙️ Confort et technologie
Pompe à chaleur et chauffage au sol intégral
Poêle à pellets dans le séjour
21 panneaux photovoltaïques
Citerne d’eau de pluie (10 000 L) avec groupe hydrophore
Micro-station d’épuration individuelle
Châssis aluminium et PVC double vitrage gris anthracite
Garage carrelé avec porte sectionnelle motorisée
Système d’alarme complet (périmétrique et volumétrique)
🛋️ Espaces de vie
Rez-de-chaussée : hall d’entrée accueillant, vaste séjour baigné de lumière (salon, salle à manger et cuisine super équipée avec ilot central), buanderie, WC, garage et annexe.
Étage : trois chambres dont une suite parentale avec dressing, salle de bains avec bain et douche italienne, salle de douche séparée, hall de nuit.
Grenier : vaste volume de 64 m² prêt à être aménagé selon vos besoins (bureau, salle de jeux, espace loisirs, etc.).
🌿 Cadre et situation
Nichée dans un quartier résidentiel prisé, cette villa profite d’une orientation idéale et d’un environnement verdoyant.
À quelques minutes des écoles, commerces, et grands axes, elle combine tranquillité, modernité et accessibilité.
🔋 Performance énergétique
PEB A – Espec : 63 kWh/m².an
(Numéro : 20240901500154)
Sur les Vignes, 37D
4650 Herve
Belgique
Visite virtuelle
Voir la vidéoFinance
| Faire offre apd. | 639.000€ |
|---|---|
| Cadastre | 1.220€ |
| Disponibilité | à convenir |
Données générales
| Référence | 2025-247 |
|---|---|
| Ville | Herve |
| Type du bien | Maison |
| Année de construction | 2023 |
| État du bien | Excellent état |
Configurations
| Nombre d'étage(s) | 2 |
|---|---|
| Chambres | 3 |
| Nombre de toilette(s) | 3 |
| Salle de bain | 2 |
| Nombre de garage(s) | 1 |
| Terrasse(s) | Oui |
| Jardin | Oui |
Rapports énergériques
| Code unique PEB | 20240901500154 |
|---|---|
| Classe énergétique PEB | A |
| Valeur énergétique E-SPEC kWh/m²/an | 63 |
| Valeur énergétique total E-Total Kwh/an | 15453 |
| Valeur d'émission de gaz Kg CO2/an | 15 |
| Type de chauffage | Chauffage au sol |



































